軽井沢追分の東信不動産 / 軽井沢に暮らす 豊かな自然に囲まれて 軽井沢に「暮らす」という選択肢。
地元軽井沢の不動産屋として46年以上の信用。軽井沢不動産情報-別荘・住宅・土地-東信不動産
売新築別荘 軽井沢 桜ヶ丘ヴィレッジ別荘2LDK  通年利用の週末別荘におすすめ。木の温もり溢れる癒しの家。
自然素材の板張&塗りを採用した癒しの別荘 別荘の玄関周りの様子玄関より入った様子木の板や垂木も綺麗にあらわした別荘
洗面所にもタオルが掛けられる便利なパネルヒーター雰囲気の良い木製の玄関です。アイランドキッチン&パネルヒーター
塗壁が綺麗な玄関の様子。自然素材の内装&おしゃれなパネルヒーター便利な屋根付きウッドデッキ。
1Fの間取図-19畳LDK・玄関・1坪バス・洗面・トイレ・ゆとりの階段下クローゼット・冷蔵庫スペース-
1F 基本プラン
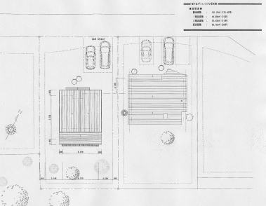
別荘の配置図面
配置図面(周りの建物との目線&バランスにも配慮)
2Fの間取図-7.5畳寝室・3畳クローゼット・6畳[部屋&クローゼット]・2.5畳ワークスペース-
2F 基本プラン2LDK


外装は木のぬくもり溢れる板張と塗壁
四季を通じて彩豊かな自然で心地よい
LDKの壁・塗壁&床・無垢唐松フローリング
自然素材の採用で家の中から癒されます
屋根つきのウッドデッキも魅力的
自然に囲まれた軽井沢らしい建物です



☆ 建築家コラボ企画 ☆
建築家×コーディネーター×工務店の自信作!!
別荘でも定住でもおすすめ!!


桜ヶ丘ヴィレッジは将来的にも美しい環境です。
敷地は地中埋設電線&緑が綺麗な
自然と調和した軽井沢らしい環境



売約済

- 新築一戸建・別荘物件2LDK -
豊かな緑と利便性の両立した定住&週末別荘におすすめ
北欧スタイルの全館パネルヒーターで暖かくおしゃれな空間演出
夏は軽井沢の自然で涼しい環境・冬は自然な暖かさの快適な家
リビングや屋根付ウッドデッキからは敷地の自然を満喫
□1F 49.68u(15坪)□ 19畳LDK・玄関・1坪バス・洗面・トイレ・階段下クローゼット・冷蔵庫スペース
□2F 36.43u(11坪)□ 7.5畳寝室・3畳クローゼット・6畳[部屋&クローゼット]・2.5畳ワークスペース
□合計 86.12u(26坪)□


玄関からLDK 玄関まわり-間仕切扉あり- パネルヒーター&LDK
玄関からLDK 玄関まわり おしゃれなパネルヒーター&LDK
自然素材豊富な内装 階段-県産唐松- LDK-唐松フローリング-
自然素材豊富な内装 階段-県産唐松- 無垢唐松フローリング
アイランドキッチン&パネルヒーター 2F寝室-ナラフローリング- クローゼット-書斎でもOK-
アイランドキッチン&パネルヒーター 2F寝室-クローゼットを開ければ続間にできます-無垢ナラフローリング採用 クローゼット-扉を開けると寝室と続間にもできます-
IHクッキングヒーター&採風勝手口 換気暖房乾燥機付ユニットバス 洗面所-唐松&洗面ボウル-
IHクッキングヒーター付キッチンで安心。採風勝手口で夏涼しいです。 換気暖房乾燥機付ユニットバス 洗面所-唐松&洗面ボウルがおしゃれ-
LDKから見る景色 ワークスペースより見た景色 2F部屋-南側の景色-
LDKから見る景色 ワークスペースより見た景色 2F部屋-南側の景色-
玄関周りの様子 あらわしの木の板&垂木 2F部屋-西側の景色-
玄関周りの様子 あらわしの木の板&垂木 2F部屋-西側の景色-
屋根付ウッドデッキ-樹種にも注目- 南側の様子-大きな窓が魅力的- あらわしの木の板&垂木
屋根付ウッドデッキ-床は長持ちする樹種を選びました- 南側の様子-自然を堪能する大きな窓&採風勝手口- あらわしの木の板&垂木
敷地のもみじ-秋の紅葉- 南側-窓から癒されます- 南側から見た別荘
敷地のもみじ-秋の紅葉- 南側-窓から癒されます- 南側から見た2LDK別荘
2F寝室-秋の紅葉- 2F部屋-窓から癒されます- 秋の紅葉と別荘
2F寝室-秋の紅葉- 2F部屋-窓から癒されます- 秋の紅葉と別荘

所在地  軽井沢町大字長倉[桜ヶ丘ヴィレッジ]  用途 第一種住居地域

交通   しなの鉄道 中軽井沢駅 約2.5q/ JR軽井沢駅 約5.8q/ しなの鉄道 信濃追分駅 約1,9q 

敷地面積  431.29u(130坪) 建ぺい率 60% 容積率 200%

建物面積 1階床面積49.68u 2階床面積36.43u 延床面積86.12u(26坪)2LDK

築年数  新築別荘 平成24年9月 設備 中部電力、公営水道、個別浄化槽、北欧パネルヒーター、塗壁、

       アイランドキッチン&IHクッキングヒーター、換気暖房乾燥機付ユニットバス、屋根付ウッドデッキ、

       low-ePG断熱アルミ樹脂サッシ、無垢唐松フローリング、無垢ナラフローリング、エコなLED照明、

       木製玄関ドア(防犯対策のディンプルキー)、長野県産木材多数、BS&地デジ、光対応、植栽など


      -お買得な特別価格- ≪仲介手数料不要です。≫

その他  長野県景観条例、軽井沢町の自然保護対策要綱、桜ヶ丘ヴィレッジ環境協定、桜ヶ丘管理費[1320円/月額税込]

      オールシーズン利用OK。別荘内部は健康的な調湿・脱臭などの作用&ほのかな木の香りで癒されます。

      永住別荘はもちろん週末別荘として冬も楽しむなら低ランニングコストで水抜き要らずの設計です!!

自然素材の内装とパネルヒーターがおしゃれです。パネルヒーター&LDKの様子アイランドキッチン&パネルヒーターおしゃれな木製の玄関ドア無垢の唐松フローリングタオルを掛けられるパネルヒーター使い勝手の良いトイレ&パネルヒーター個室の様子

トップページ - 軽井沢の不動産物件情報

- 桜ヶ丘ヴィレッジ[Karuizawa Sakuragaoka Village] - ライフ[Village Life]

桜ヶ丘ヴィレッジプライス[Price ]- フリープランご希望のお客様[FreePlan]

- 桜ヶ丘ヴィレッジ2期[Sakuragaoka Village2]
東信不動産株式会社 軽井沢町大字追分812-1 TEL 0267-46-1255
Copyright Toushin Fudousan K.K. All Rights Reserved.