軽井沢追分の東信不動産 / 軽井沢に暮らす 豊かな自然に囲まれて 軽井沢に「暮らす」という選択肢。
地元軽井沢の不動産屋として45年以上の信用。軽井沢不動産情報-別荘・住宅・土地-東信不動産
売提案別荘 軽井沢 桜ヶ丘ヴィレッジK区画  緑の中で四季を楽しみ豊かに暮らす平屋の家。2LDK別荘。
建物24.46坪+桜ヶ丘ヴィレッジK155坪 敷地の様子
敷地の様子 建物24.46坪+桜ヶ丘ヴィレッジK155坪
建物24.46坪+桜ヶ丘ヴィレッジK155坪 敷地の様子
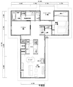
敷地の様子 平屋別荘の間取図

桜ヶ丘village各区画 - その他当社土地仲介物件・建築家コラボOK -

☆ 建築家コラボ企画 ☆
土地の良さを引き出し緑を楽しめる別荘としてご提案。
周囲の借景利用のプライベートガーデン&東南の広いガーデン。
-森の緑に囲まれて四季を楽しみ豊かに暮らす平屋別荘-
年間を通じて別荘を楽しみたいオーナー様に特におすすめ。
2LDK
週末別荘におすすめ。
ぬくもりある自然素材満載の森の家です。
外壁は軽井沢らしい木の板で考えていますが変更OK。
合計 80.87u(24.46坪)
※プライベートテラス7.45u(2.25坪)面積に含まず。
※室外機置場1.11u(0.33坪)面積に含まず。

[建物]
特別価格にてご提供!!
(仕様などその他条件で価格は前後致しますのでご相談ください!!)
≪オーナー様専用の建築家コーディネーター設計プランにて対応≫
土地や環境・ご予算・オーナー様に応じたプランにてご提案いたします。
※当社が仲介する土地は建築家コラボOKなのでお気軽にどうぞ!
※ご使用条件・ご予算等ご相談ください!!


敷地のツツジ 敷地の様子 敷地の様子-新緑&桜
敷地のツツジ 敷地の様子 新緑&桜咲く様子
敷地の様子-紅葉 敷地の紅葉 プライベートアプローチ-紅葉
敷地の様子-紅葉 土地の紅葉 プライベートアプローチ-紅葉
斜め方向-コモンスペース&水路 敷地斜め-ツツジが綺麗! オーナー様の集い・休憩に!
斜め方向-コモンスペース&水路 敷地斜め-ツツジが綺麗!d コモンスペース-ツツジ-オーナー様の集い・休憩に!

所在地   軽井沢町大字長倉(桜ヶ丘ヴィレッジ12区画)  用途 第一種住居地域

交通    しなの鉄道 中軽井沢駅 約2.5q

敷地面積   513.38u(155.29坪) 建ぺい率 60% 容積率 200%

建物面積  延床面積80.87u(24.46坪)-平屋2LDK 

築年数   提案新築  設備 中部電力、公営水道、個別浄化槽、システムキッチン、ユニットバス、

       パネルヒーター、木のぬくもりを感じる無垢床、自然素材の外壁、北側デッキなど

       ※暖炉は別途・必要に応じて。別途で南東ウッドデッキもOK。

その他  長野県景観条例、軽井沢町の自然保護対策要綱、環境協定、桜ヶ丘管理費[1320円/月額税込]

        ワンランク上の満足をお約束。土地は桜ヶ丘ヴィレッジK区画にて【価格・ご相談・お問い合わせはお気軽にどうぞ!!】

        桜ヶ丘ヴィレッジK区画の詳細情報です♪


パネルヒーター&LDKの様子アイランドキッチン&パネルヒーターおしゃれな木製の玄関ドア無垢の唐松フローリングタオルを掛けられるパネルヒーター使い勝手の良いトイレ&パネルヒーター玄関周りの様子個室の様子

トップページ-軽井沢の不動産物件情報-桜ヶ丘ヴィレッジ[Karuizawa Sakuragaoka Village]-ライフ[Village Life]
桜ヶ丘ヴィレッジプライス[Price]-フリープランご希望のお客様[FreePlan]-桜ヶ丘ヴィレッジ2期[Sakuragaoka Village2]
東信不動産株式会社 軽井沢町大字追分812-1 TEL 0267-46-1255
Copyright Toushin Fudousan K.K. All Rights Reserved.